112 – 50 Baif Boulevard, Richmond Hill (North Richvale), Ontario L4C 5L1 (29306663)

112 - 50 Baif Boulevard Richmond Hill, Ontario L4C 5L1

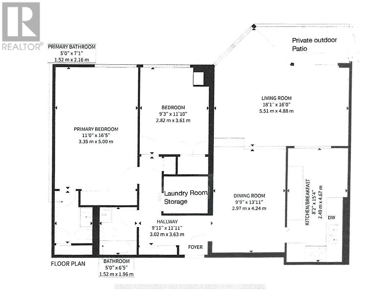
2 Bedroom 2 Bathroom 1,000 - 1,199 ft2
Central Air Conditioning Forced Air

$554,900

Maintenance, Heat, Water, Electricity, Common Area Maintenance, Parking

$990.13 Monthly

Welcome to this beautifully maintained 2-bedroom, 2-bathroom ground-floor suite at Blvd, in the heart of Richmond Hill. Featuring a newer kitchen, professionally painted throughout, this unit offers a rare private walk-out terrace perfect for outdoor dining or relaxing in your own quiet space. Open-concept Living/Dining Room perfect for entertaining! Spacious bedrooms, well-appointed bathrooms, and abundant natural light make this home ideal for comfortable everyday living. No waiting for elevators! Upgraded Hunter Douglas Blinds in the living room. Unbeatable location steps to Hillcrest Mall, Yonge Street transit, shopping, restaurants, and all amenities. A perfect opportunity for first-time buyers, downsizers, or investors seeking convenience and lifestyle. (id:50976)

Property Details

MLS® Number N12742868
Property Type Single Family
Community Name North Richvale
Community Features Pets Allowed With Restrictions
Features In Suite Laundry
Parking Space Total 2

Building

Bathroom Total 2
Bedrooms Above Ground 2
Bedrooms Total 2
Amenities Storage - Locker
Basement Type None
Cooling Type Central Air Conditioning
Exterior Finish Brick
Heating Fuel Natural Gas
Heating Type Forced Air
Size Interior 1,000 - 1,199 Ft2
Type Apartment

Parking

Underground
Garage

Land

Acreage No

Rooms

Level Type Dimensions
Main Level Living Room 5.21 m x 3.41 m
Main Level Dining Room 4.66 m x 2.93 m
Main Level Kitchen 4.57 m x 2.38 m
Main Level Primary Bedroom 4.88 m x 3.08 m
Main Level Bedroom 2 3.57 m x 2.77 m

https://www.realtor.ca/real-estate/29306663/112-50-baif-boulevard-richmond-hill-north-richvale-north-richvale

Contact Us

Contact us for more information

Generating Captcha

Julianne Brenda Boileau
Salesperson

(416) 418-6683
www.time2buy-sell.com/

RE/MAX Hallmark York Group Realty Ltd.
25 Millard Ave West Unit B - 2nd Flr
Newmarket, Ontario L3Y 7R5

(905) 727-1941
(905) 841-6018

Carol Anne Boileau
Salesperson

(905) 883-4922

RE/MAX Hallmark Realty Ltd.
9555 Yonge Street #201
Richmond Hill, Ontario L4C 9M5

(905) 883-4922
(905) 883-1521

Your Favourites

 

No Favourites Found