3,075 ft2
Partially Air Conditioned
Forced Air
Acreage
$1,250,000
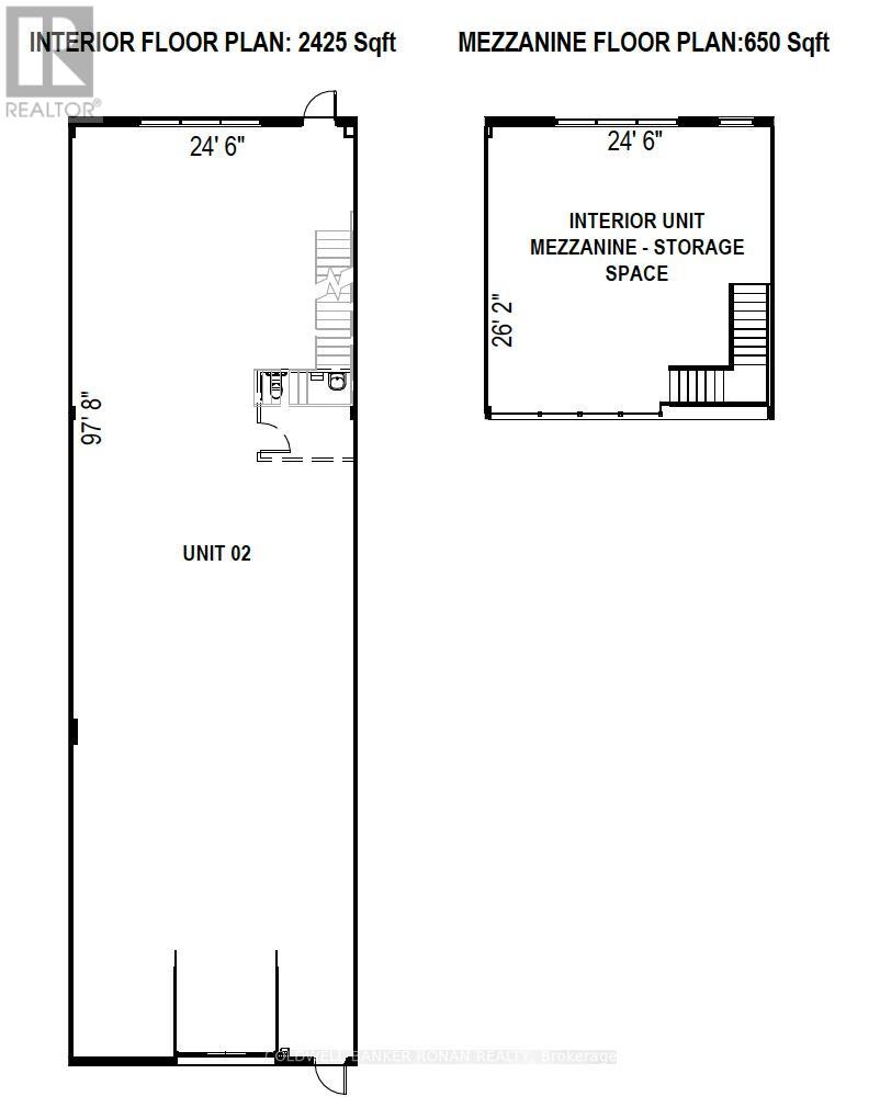
Discover a rare opportunity to own a striking, newly constructed industrial-office unit in one of Alliston's fastest-growing employment districts-ideal for businesses looking to expand operations or secure a long-term asset. 2 Alderson offers excellent visibility and convenient access to major routes, including Highway 89, with close proximity to the Honda Manufacturing & Baxter Labs facilities. Ongoing growth in the surrounding area continues to strengthen the property's long-term value and strategic positioning. Each unit features a bright, open layout with 22-foot clear ceilings, oversized 10' x 14' drive-in doors for efficient shipping and receiving, and a light-filled mezzanine. Built with durable, high-quality materials, the space is designed for flexibility and low maintenance. Zoned EA2-13, it supports a wide range of uses, including office, light manufacturing, contractor services, and research and development, making it a versatile and attractive option for both owner-occupiers and investors. (id:50976)
Property Details
|
MLS® Number
|
N13022220 |
|
Property Type
|
Industrial |
|
Community Name
|
Alliston |
Building
|
Age
|
New Building |
|
Cooling Type
|
Partially Air Conditioned |
|
Heating Fuel
|
Natural Gas |
|
Heating Type
|
Forced Air |
|
Size Interior
|
3,075 Ft2 |
|
Type
|
Multi-tenant Industrial |
|
Utility Water
|
Municipal Water |
Land
|
Acreage
|
Yes |
|
Size Depth
|
97 Ft ,9 In |
|
Size Frontage
|
24 Ft ,7 In |
|
Size Irregular
|
1.11 |
|
Size Total
|
1.11 Ac |
|
Size Total Text
|
1.11 Ac |
|
Zoning Description
|
Ea2-13 |
https://www.realtor.ca/real-estate/29631462/1-2-alderson-court-new-tecumseth-alliston-alliston