2 – 2 Alderson Court, New Tecumseth (Alliston), Ontario L9R 2B7 (29631464)

2 - 2 Alderson Court New Tecumseth, Ontario L9R 2B7

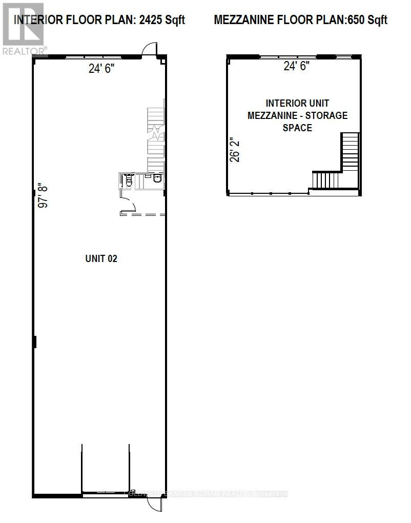
3,075 ft2
Partially Air Conditioned Forced Air Acreage

$1,199,000

Discover a rare opportunity to own a striking, newly constructed industrial-office unit in one of Alliston's fastest-growing employment districts-ideal for businesses looking to expand operations or secure a long-term asset. 2 Alderson offers excellent visibility and convenient access to major routes, including Highway 89, with close proximity to the Honda Manufacturing & Baxter Labs facilities. Ongoing growth in the surrounding area continues to strengthen the property's long-term value and strategic positioning. Each unit features a bright, open layout with 22-foot clear ceilings, oversized 10' x 14' drive-in doors for efficient shipping and receiving, and a light-filled mezzanine. Built with durable, high-quality materials, the space is designed for flexibility and low maintenance. Zoned EA2-13, it supports a wide range of uses, including office, light manufacturing, contractor services, and research and development, making it a versatile and attractive option for both owner-occupiers and investors. (id:50976)

Property Details

MLS® Number N13022234
Property Type Industrial
Community Name Alliston

Building

Age New Building
Cooling Type Partially Air Conditioned
Heating Fuel Natural Gas
Heating Type Forced Air
Size Interior 3,075 Ft2
Type Multi-tenant Industrial
Utility Water Municipal Water

Land

Acreage Yes
Size Depth 97 Ft ,9 In
Size Frontage 24 Ft ,7 In
Size Irregular 1.11
Size Total 1.11 Ac
Size Total Text 1.11 Ac
Zoning Description Ea2-13

https://www.realtor.ca/real-estate/29631464/2-2-alderson-court-new-tecumseth-alliston-alliston

Contact Us

Contact us for more information

Generating Captcha

Giuliana Pallotta
Broker

(905) 936-4216

Coldwell Banker Ronan Realty
25 Queen St. S.
Tottenham, Ontario L0G 1W0

(905) 936-4216
(905) 936-5130

Marc Ronan
Salesperson

(905) 936-4216
www.marcronan.com/

Coldwell Banker Ronan Realty
25 Queen St. S.
Tottenham, Ontario L0G 1W0

(905) 936-4216
(905) 936-5130

Deanna Fudge
Salesperson

(705) 440-7153
deannafudge.com/

Coldwell Banker Ronan Realty
25 Queen St. S.
Tottenham, Ontario L0G 1W0

(905) 936-4216
(905) 936-5130

Your Favourites

 

No Favourites Found