42 Union Street, St. Catharines, Ontario L2S 2R2 (29631077)

42 Union Street St. Catharines, Ontario L2S 2R2

3 Bedroom 1 Bathroom 1,100 - 1,500 ft2
Fireplace Central Air Conditioning Forced Air

$589,900

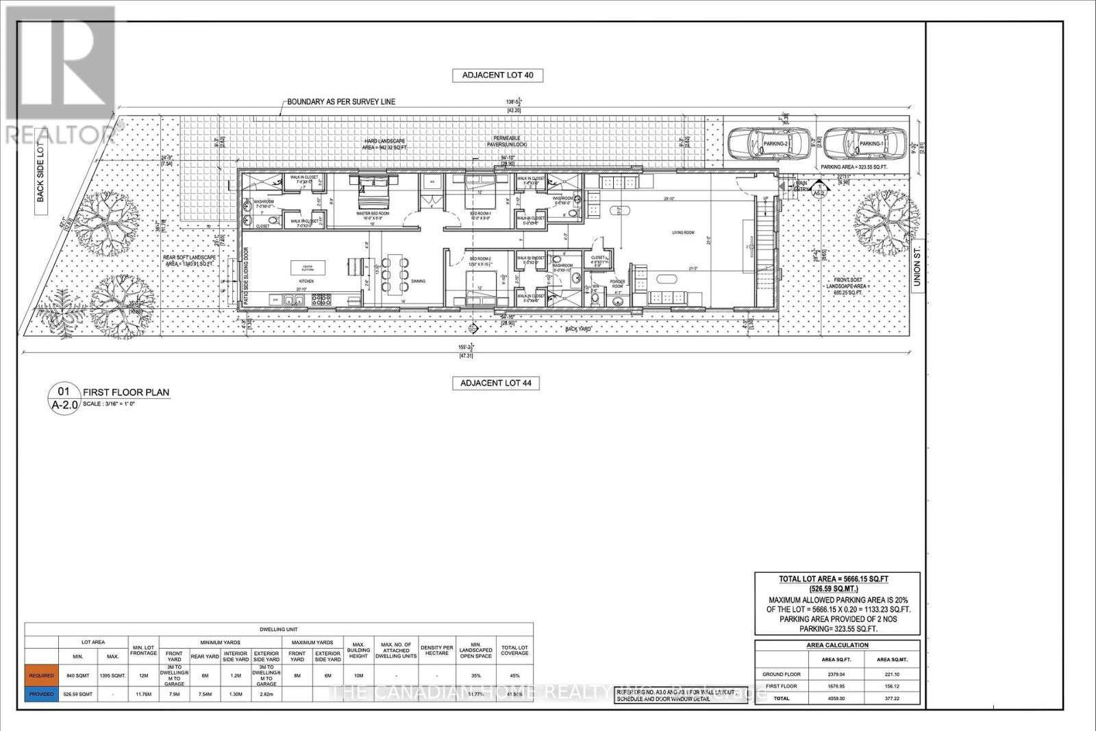
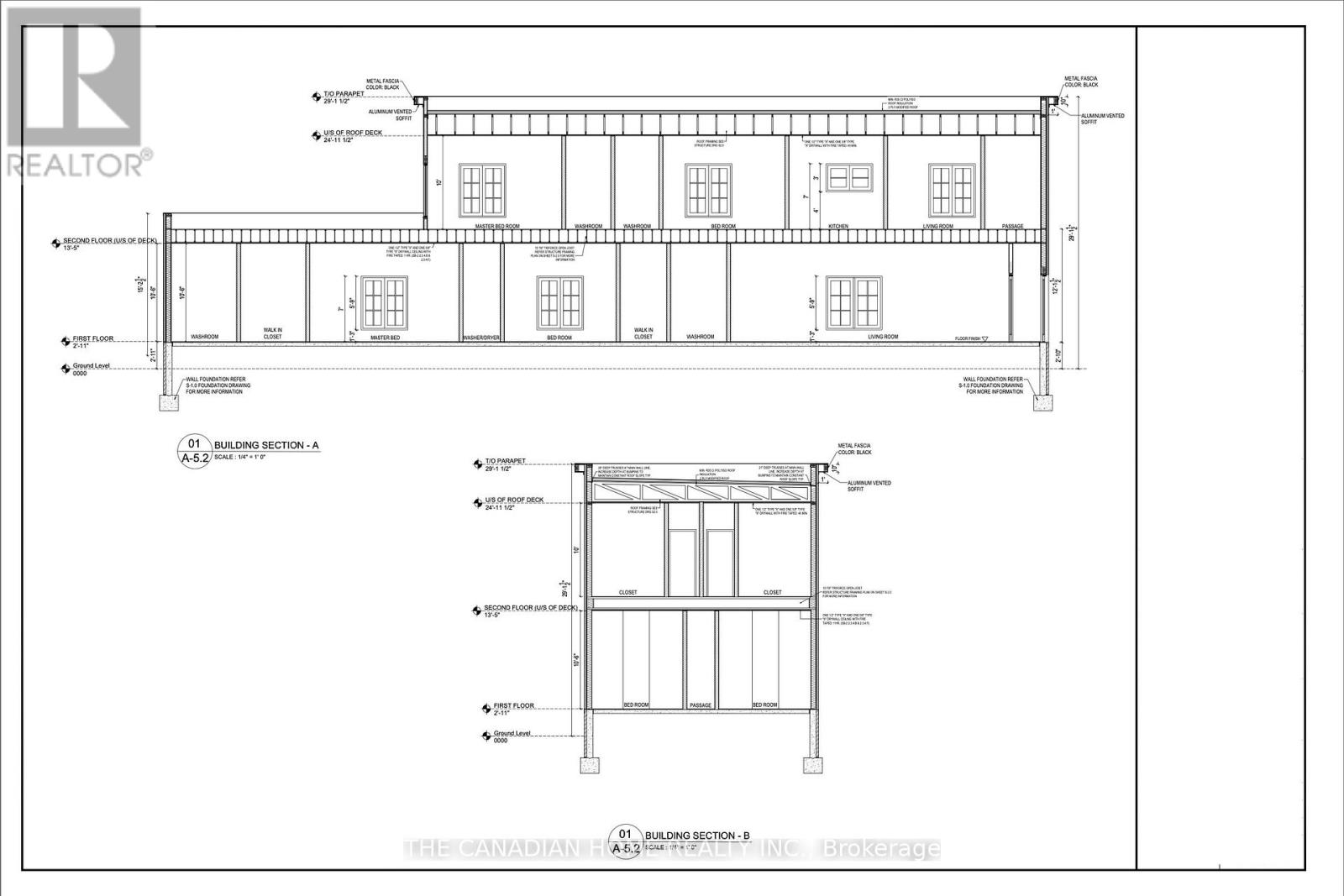
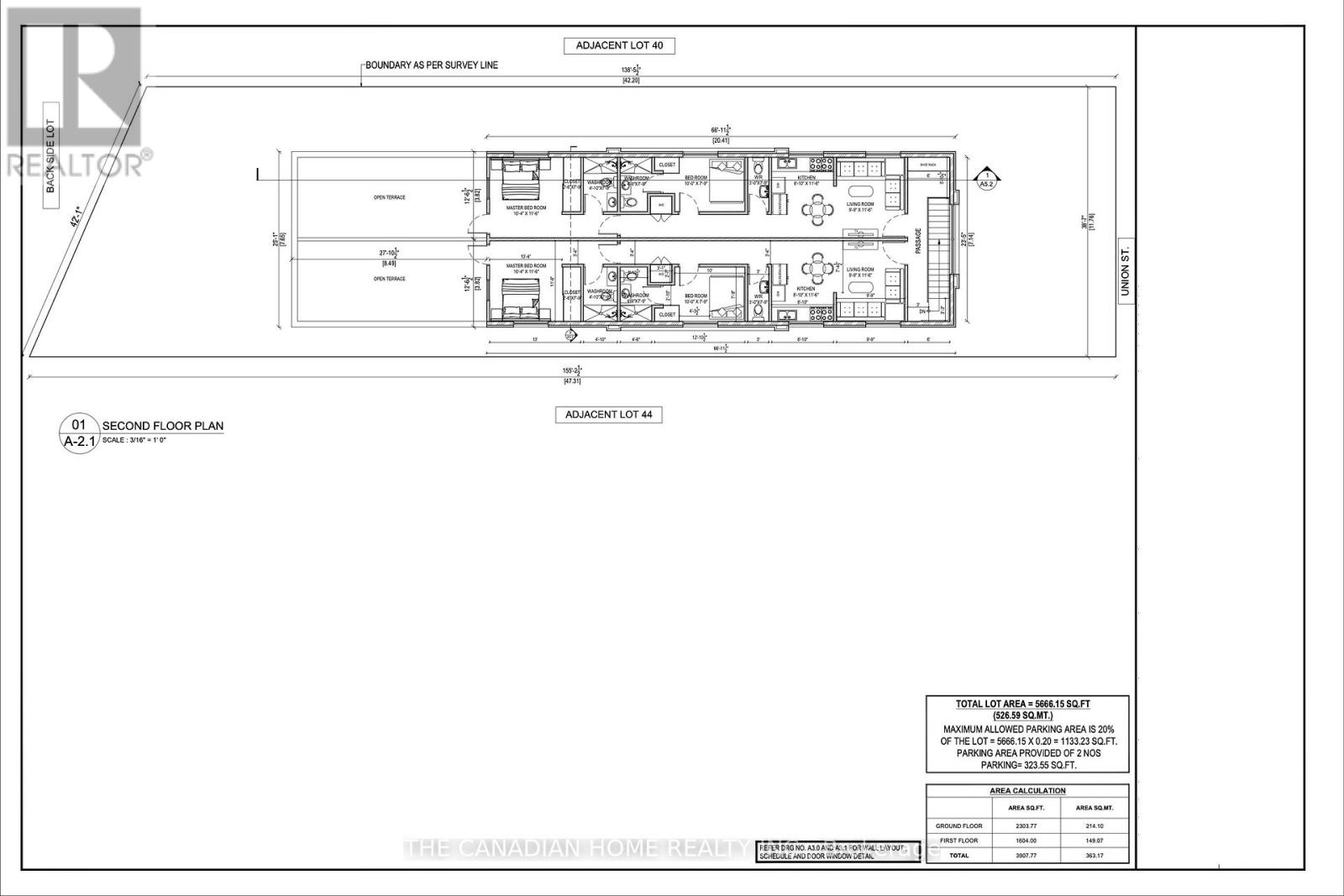
Approved shovel-ready triplex development opportunity in St. Catharines! Calling all investors,builders, and savvy buyers. This is a rare chance to begin construction immediately with anapproved triplex permit already in hand, avoiding months of planning delays and significantsoft costs. Plans are completed for approximately 3,900-4,000 sqft of total build, designed asthree self-contained residential units featuring efficient layouts, multiple washrooms, andmodern exterior elevations tailored for strong rental appeal. Ideal for investors seekinglong-term hold cash flow, a BRRRR strategy, or builders looking for a ready-to-go project withapprovals secured and equally attractive for a buyer looking to live in one unit and rent theother two for supplemental income. Situated in a desirable neighbourhood close to schools,Montessori and childcare centres, parks, public transit, shopping, and everyday amenities, withconvenient access to downtown St. Catharines, Brock University, the Pen Centre, and majorroutes. A turnkey multi-unit opportunity in a growing rental market (id:50976)

Property Details

MLS® Number X13021732
Property Type Single Family
Community Name 458 - Western Hill
Amenities Near By Park, Public Transit
Parking Space Total 2

Building

Bathroom Total 1
Bedrooms Above Ground 3
Bedrooms Total 3
Age 51 To 99 Years
Basement Development Unfinished
Basement Type Partial (unfinished)
Construction Style Attachment Detached
Cooling Type Central Air Conditioning
Exterior Finish Stone, Stucco
Fireplace Present Yes
Foundation Type Block
Heating Fuel Natural Gas
Heating Type Forced Air
Stories Total 2
Size Interior 1,100 - 1,500 Ft2
Type House
Utility Water Municipal Water

Parking

No Garage

Land

Acreage No
Land Amenities Park, Public Transit
Sewer Sanitary Sewer
Size Depth 155 Ft ,2 In
Size Frontage 38 Ft ,6 In
Size Irregular 38.5 X 155.2 Ft
Size Total Text 38.5 X 155.2 Ft

Rooms

Level Type Dimensions
Second Level Bedroom 2.13 m x 3.66 m
Second Level Bedroom 3.66 m x 3.66 m
Main Level Kitchen 3.17 m x 3.66 m
Main Level Living Room 3.66 m x 5.18 m
Main Level Bedroom 2.44 m x 3.35 m

https://www.realtor.ca/real-estate/29631077/42-union-street-st-catharines-western-hill-458-western-hill

Contact Us

Contact us for more information

Generating Captcha

Udhey Makhni
Salesperson

(647) 721-9001

The Canadian Home Realty Inc.
2810 Matheson Blvd E #801
Mississauga, Ontario L4W 5J8

(905) 206-1444
www.thecanadianhome.com/

Your Favourites

 

No Favourites Found