421748 Concession 6 Ndr Road, West Grey, Ontario N0G 1S0 (29664541)

421748 Concession 6 Ndr Road West Grey, Ontario N0G 1S0

4 Bedroom 2 Bathroom 2,500 - 3,000 ft2
Fireplace Central Air Conditioning Forced Air Waterfront On River Acreage

$2,599,000

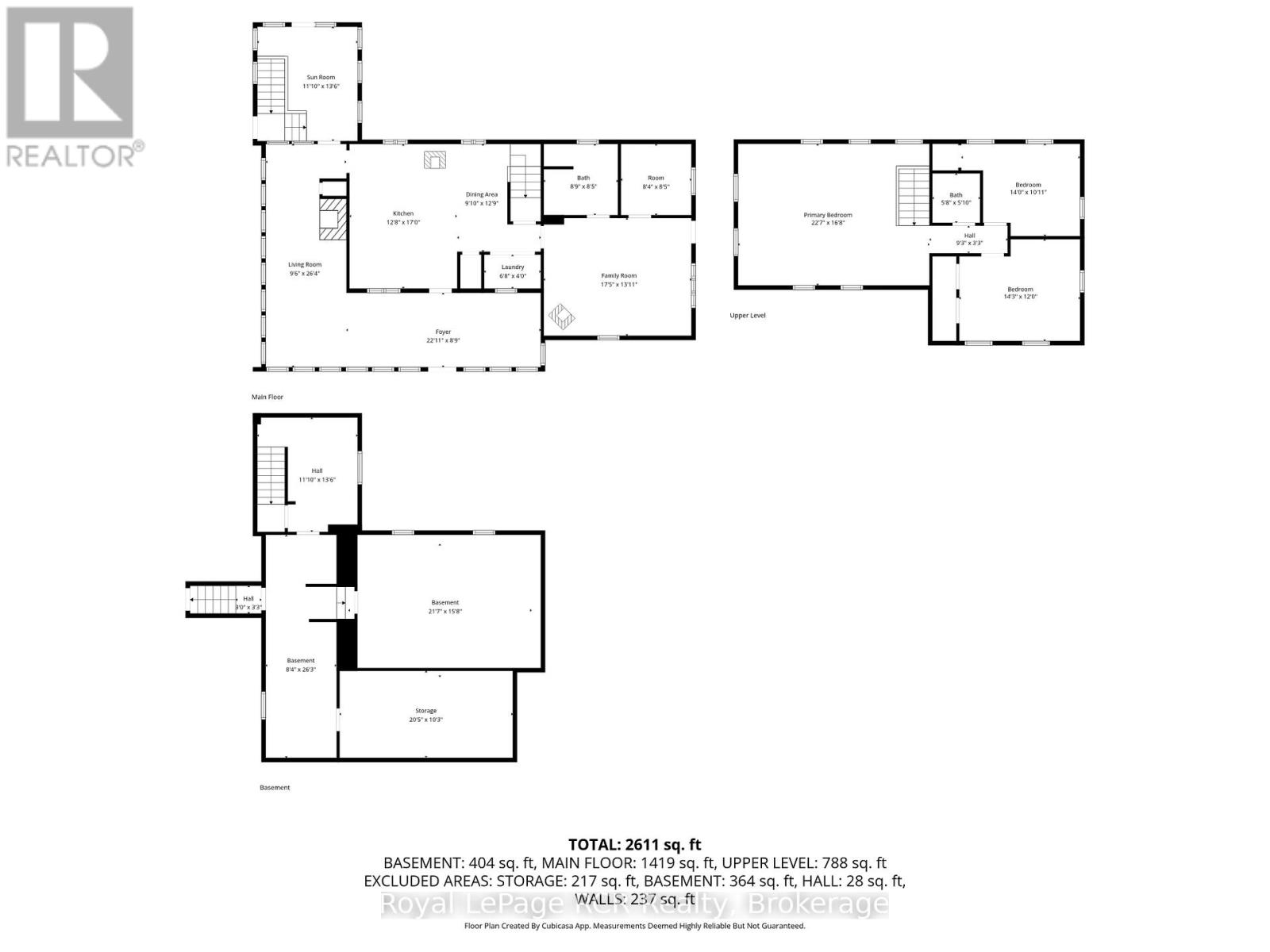
122-acre farm north of Hanover offering a versatile mix of workable land, outbuildings and a solid home. Approximately 95 acres are workable, with about 60 acres currently in crops and the balance in hay. The Styx River forms the scenic western boundary.The fully bricked home features a wraparound sunroom on two sides with a wood fireplace, a spacious eat-in kitchen with island and full appliance package, and a bright living room with woodstove. The main floor also includes a bedroom or office, a 4-piece bath with jet tub, a rear mudroom with access to the lower level, and French doors leading to the back deck. Upstairs offers a large primary bedroom with four skylights, two additional bedrooms, and a 2-piece bath. The lower level is unfinished with walk-up to outside and includes propane forced-air furnace, central vacuum, water softener, UV system, 200-amp service, storage and cold room.House also has central air. Outbuildings are well suited for a variety of uses. A 24' x 40' concrete block detached garage has a cement floor and oil furnace (not currently connected). The large concrete foundation shed (50' x 90') includes a 23' x 50' insulated shop with 14' x 16' roll-up door, propane radiant heat, hydro and air compressor, and includes 64' x 50' section. The 38' x 50' bank barn has a cement floor and horse stalls, with a 52' x 50' upper level and 28' x 21' addition. Further down the laneway are two additional barns (28' x 50' and 36' x 60'), set on a concrete yard with covered round bale feeder, along with a small shed housing the well.A well-rounded farm property with strong agricultural potential in a desirable rural location. (id:50976)

Property Details

MLS® Number X13050874
Property Type Agriculture
Community Name West Grey
Easement None
Equipment Type Propane Tank
Farm Type Farm
Features Irregular Lot Size
Parking Space Total 10
Rental Equipment Type Propane Tank
Structure Porch, Drive Shed, Barn, Barn, Outbuilding
View Type Direct Water View
Water Front Type Waterfront On River

Building

Bathroom Total 2
Bedrooms Above Ground 4
Bedrooms Total 4
Age 100+ Years
Amenities Fireplace(s)
Appliances Oven - Built-in, Central Vacuum, Water Softener, Water Heater, Range, Dishwasher, Dryer, Freezer, Oven, Stove, Wall Mounted Tv, Washer, Refrigerator
Basement Features Walk-up
Basement Type Full
Cooling Type Central Air Conditioning
Exterior Finish Brick
Fireplace Present Yes
Fireplace Total 2
Fireplace Type Woodstove
Foundation Type Poured Concrete, Stone
Half Bath Total 1
Heating Fuel Propane
Heating Type Forced Air
Stories Total 2
Size Interior 2,500 - 3,000 Ft2

Parking

Detached Garage
Garage

Land

Access Type Year-round Access
Acreage Yes
Sewer Septic System
Size Depth 3296 Ft
Size Frontage 1382 Ft
Size Irregular 1382 X 3296 Ft
Size Total Text 1382 X 3296 Ft|100+ Acres
Soil Type Loam, Sand
Zoning Description A1 H

Utilities

Electricity Installed

https://www.realtor.ca/real-estate/29664541/421748-concession-6-ndr-road-west-grey-west-grey

Contact Us

Contact us for more information

Generating Captcha

Angela Boersma
Broker

(519) 369-4759
www.boersmateam.com/

Royal LePage Rcr Realty
425 10th St,
Hanover, N4N 1P8

(519) 364-7370
(519) 364-2363
royallepagercr.com/

Siebren Boersma
Salesperson

(519) 369-4759
www.boersmateam.com/

Royal LePage Rcr Realty
425 10th St,
Hanover, N4N 1P8

(519) 364-7370
(519) 364-2363
royallepagercr.com/

Your Favourites

 

No Favourites Found