716 – 121 Mcmahon Drive, Toronto, Ontario M2K 0C1 (29185826)

716 - 121 Mcmahon Drive Toronto, Ontario M2K 0C1

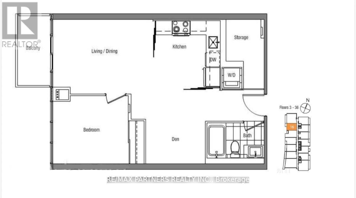
2 Bedroom 1 Bathroom 600 - 699 ft2
Central Air Conditioning Forced Air

$559,900

Maintenance, Common Area Maintenance, Heat, Insurance, Parking, Water

$592.12 Monthly

Welcome to this High Demand in Leslie & Sheppard Sun-filled Concord Adex Unit 1+1 Bedroom with Unobstructed views through Floor-to-ceiling windows*Park view at eye level even from kitchen area*Approx. 645Sf + Large Storage*Convenience Location Close to Subway station* Large Ensuite Locker in the Unit ! Den can convert into 2nd Large Bedroom*The Space In Natural Light* Featuring a Modern kitchen with Granite counters & Backsplash*Spacious bedroom with Double closet*Open Concept*Clean and Spacious* Move In Condition*Enjoy top amenitiesgym, jacuzzi, rooftop lounge with BBQ, party room, visitor parking & car wash, 24 Hr Concierge, Pet Spa,Guest Suites, In & Outdoor Whirlpools,Sauna, Weights/Cardio Rm. Steps to Subway Station, IKEA,Community Center,Canadian Tire, Bayview Village, TTC, Oriole GO, Hwy 401/404/DVP & more! 1 Parking included. (id:50976)

Property Details

MLS® Number C12632766
Property Type Single Family
Community Name Bayview Village
Community Features Pets Allowed With Restrictions
Features Balcony
Parking Space Total 1

Building

Bathroom Total 1
Bedrooms Above Ground 1
Bedrooms Below Ground 1
Bedrooms Total 2
Age 0 To 5 Years
Amenities Security/concierge, Exercise Centre, Party Room, Visitor Parking
Basement Type None
Cooling Type Central Air Conditioning
Exterior Finish Concrete
Flooring Type Laminate
Heating Fuel Natural Gas
Heating Type Forced Air
Size Interior 600 - 699 Ft2
Type Apartment

Parking

Underground
Garage

Land

Acreage No

Rooms

Level Type Dimensions
Main Level Dining Room 5.14 m x 2.57 m
Main Level Living Room 5.14 m x 2.57 m
Main Level Kitchen 2.9 m x 2.24 m
Main Level Primary Bedroom 2.92 m x 2.94 m
Main Level Den 2.12 m x 2.41 m

https://www.realtor.ca/real-estate/29185826/716-121-mcmahon-drive-toronto-bayview-village-bayview-village

Contact Us

Contact us for more information

Generating Captcha

Johnson Ching-Fung Yu
Broker

(905) 707-1882
www.johnsonyu.com/

RE/MAX Partners Realty Inc.
550 Highway 7 East Unit 103
Richmond Hill, Ontario L4B 3Z4

(905) 707-1882
(888) 300-9688

Janet H Yu
Broker of Record

(905) 707-1882
www.remaxpartners.ca/

RE/MAX Partners Realty Inc.
550 Highway 7 East Unit 103
Richmond Hill, Ontario L4B 3Z4

(905) 707-1882
(888) 300-9688

Your Favourites

 

No Favourites Found