2 Bedroom
2 Bathroom
1,070 ft2
Bungalow
Fireplace
Central Air Conditioning
Forced Air
$529,900
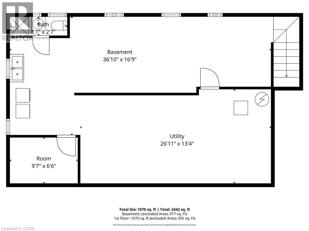
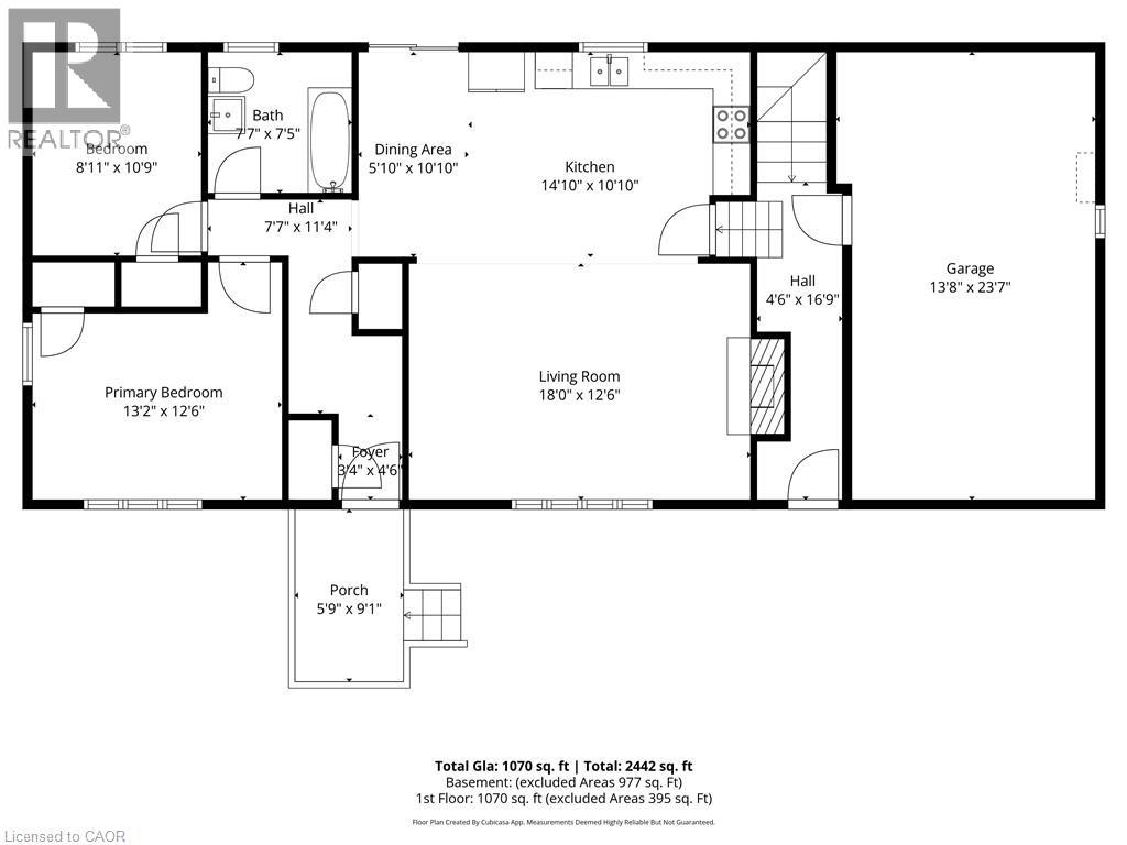
Welcome to 84 Connaught Ave in Delhi! This beautifully updated 2-bedroom, 2-bathroom bungalow offers the perfect blend of comfort, convenience, and modern updates in a desirable family-friendly neighborhood. Just a short walk to schools, parks, and scenic walking trails, this home is ideally located for those seeking both community and accessibility. Offering 1,070 sq. ft. of bright, above-grade living space, the home has seen extensive renovations designed for low-maintenance living and peace of mind. A major exterior upgrade completed in 2022 included new windows, roof, vinyl siding with upgraded exterior insulation, soffit, fascia, eavestroughs, central air conditioner, garage door, and fully fenced yard. The back deck features a gazebo and natural gas hookup for your BBQ, perfect for entertaining. Inside, the main floor has been thoughtfully refreshed with updated kitchen cabinets, quartz countertops, a recently renovated bathroom, pot lights, fresh paint, and durable laminate flooring throughout. The spacious living room is filled with natural light, creating a warm and inviting atmosphere. The eat-in kitchen provides convenient access to the backyard deck—perfect for outdoor dining and entertaining. The main floor features a comfortable primary bedroom, while a cozy second bedroom and a modern 4-piece bathroom are located just across the hall. The closet in the hallway is also roughed in for potential main floor laundry. The basement remains unfinished and ready for your personal touch, but already includes a laundry room and a 3-piece bathroom. (id:50976)
Property Details
|
MLS® Number
|
40820340 |
|
Property Type
|
Single Family |
|
Amenities Near By
|
Park, Place Of Worship, Playground, Schools |
|
Communication Type
|
High Speed Internet |
|
Equipment Type
|
Water Heater |
|
Features
|
Paved Driveway |
|
Parking Space Total
|
5 |
|
Rental Equipment Type
|
Water Heater |
Building
|
Bathroom Total
|
2 |
|
Bedrooms Above Ground
|
2 |
|
Bedrooms Total
|
2 |
|
Appliances
|
Dishwasher, Dryer, Refrigerator, Stove, Washer, Microwave Built-in, Window Coverings |
|
Architectural Style
|
Bungalow |
|
Basement Development
|
Unfinished |
|
Basement Type
|
Full (unfinished) |
|
Constructed Date
|
1956 |
|
Construction Style Attachment
|
Detached |
|
Cooling Type
|
Central Air Conditioning |
|
Exterior Finish
|
Vinyl Siding |
|
Fireplace Fuel
|
Wood |
|
Fireplace Present
|
Yes |
|
Fireplace Total
|
1 |
|
Fireplace Type
|
Other - See Remarks |
|
Foundation Type
|
Block |
|
Heating Fuel
|
Natural Gas |
|
Heating Type
|
Forced Air |
|
Stories Total
|
1 |
|
Size Interior
|
1,070 Ft2 |
|
Type
|
House |
|
Utility Water
|
Municipal Water |
Parking
Land
|
Access Type
|
Road Access |
|
Acreage
|
No |
|
Land Amenities
|
Park, Place Of Worship, Playground, Schools |
|
Sewer
|
Municipal Sewage System |
|
Size Depth
|
70 Ft |
|
Size Frontage
|
125 Ft |
|
Size Irregular
|
0.2 |
|
Size Total
|
0.2 Ac|under 1/2 Acre |
|
Size Total Text
|
0.2 Ac|under 1/2 Acre |
|
Zoning Description
|
R1-a |
Rooms
| Level |
Type |
Length |
Width |
Dimensions |
|
Basement |
3pc Bathroom |
|
|
8'0'' x 2'6'' |
|
Main Level |
Mud Room |
|
|
16'6'' x 3'1'' |
|
Main Level |
4pc Bathroom |
|
|
7'6'' x 6'8'' |
|
Main Level |
Bedroom |
|
|
10'2'' x 8'11'' |
|
Main Level |
Primary Bedroom |
|
|
13'2'' x 10'3'' |
|
Main Level |
Living Room |
|
|
17'11'' x 12'6'' |
|
Main Level |
Eat In Kitchen |
|
|
18'0'' x 10'3'' |
|
Main Level |
Foyer |
|
|
8'2'' x 3'6'' |
Utilities
|
Cable
|
Available |
|
Electricity
|
Available |
|
Natural Gas
|
Available |
https://www.realtor.ca/real-estate/29616964/84-connaught-avenue-delhi