5 Bedroom
5 Bathroom
2,500 - 3,000 ft2
Fireplace
Central Air Conditioning
Forced Air
Landscaped
$1,350,000
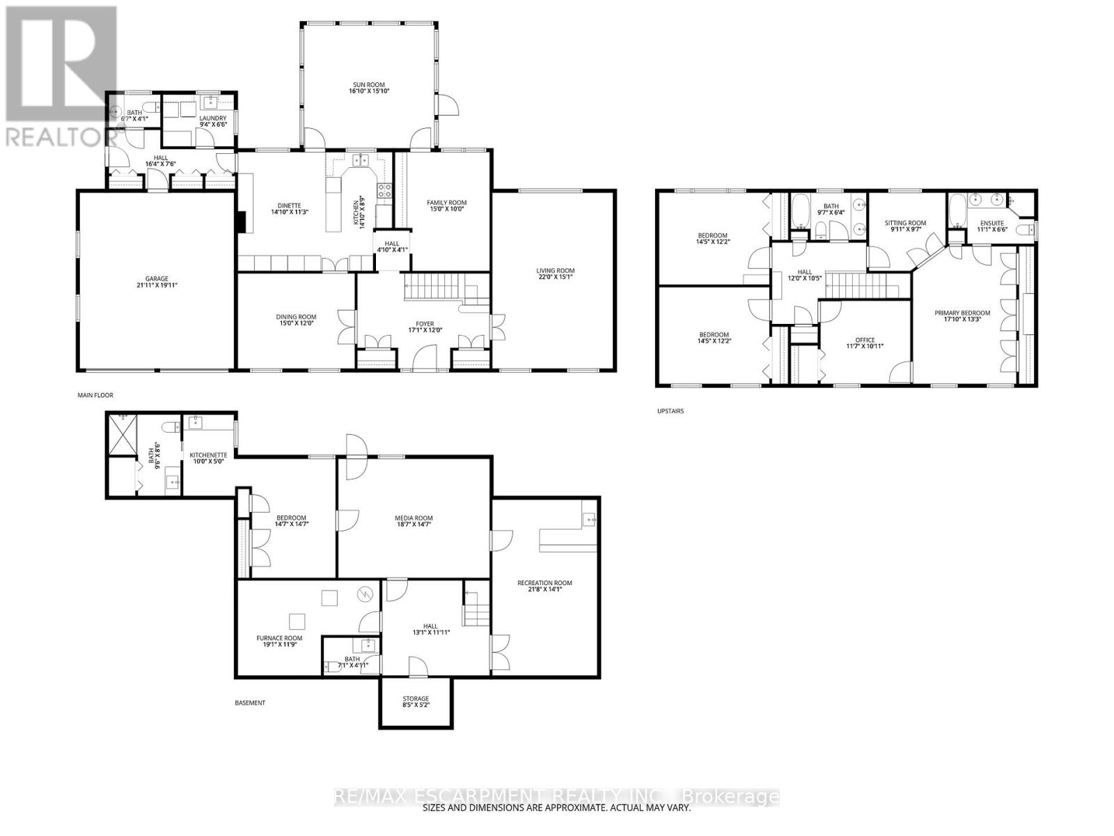
A truly one-of-a-kind two-storey residence with unmistakable mid-century flair, this spacious 5-bedroom home blends character, functionality, and an extraordinary ravine setting in sought-after University Gardens. The main level is designed for both everyday living and entertaining, featuring a bright living room with fireplace, framed by treetop views, a formal dining room, and an eat-in kitchen with dramatic floor-to-ceiling pantry storage, dinette, and walk-out to the sunroom. The sunroom, boasting gorgeous stone floor and fireplace, steps out to the backyard and also connects to the inviting family room-perfect as a den, library, or cozy retreat-alongside main floor laundry, a powder room, and inside entry to the double garage. Upstairs, a distinctive floorplan offers four generous bedrooms and two full bathrooms, highlighted by a remarkable primary suite complete with sitting room or nursery, 5 piece ensuite, an entire wall of custom closets with hidden TV space, and private access to an adjoining bedroom currently used as an office. The fully renovated lower level offers incredible flexibility as an in-law suite, teen haven or multi-generational living, featuring a stylish rec room with bar area, powder room, fifth bedroom with kitchenette and private ensuite, plus a media/gym space with walk-out to the backyard patio and hot tub. Outside, the endless rear yard feels like a private escape, where you can spend your time birdwatching or enjoying evenings around the firepit in Muskoka chairs overlooking the ravine. Ideally located near top schools, University Plaza, McMaster University, and convenient highway access, this is a rare opportunity to own a home unlike any other. (id:50976)
Property Details
|
MLS® Number
|
X13049478 |
|
Property Type
|
Single Family |
|
Community Name
|
Dundas |
|
Amenities Near By
|
Park, Place Of Worship, Public Transit, Schools |
|
Features
|
Wooded Area, Sloping, Conservation/green Belt, Dry, Level |
|
Parking Space Total
|
4 |
|
Structure
|
Patio(s) |
|
View Type
|
View |
Building
|
Bathroom Total
|
5 |
|
Bedrooms Above Ground
|
4 |
|
Bedrooms Below Ground
|
1 |
|
Bedrooms Total
|
5 |
|
Age
|
51 To 99 Years |
|
Amenities
|
Fireplace(s), Separate Heating Controls |
|
Appliances
|
Garage Door Opener Remote(s), Water Meter, Dishwasher, Dryer, Garage Door Opener, Microwave, Stove, Washer, Window Coverings, Refrigerator |
|
Basement Development
|
Finished |
|
Basement Features
|
Walk Out |
|
Basement Type
|
Full (finished) |
|
Construction Style Attachment
|
Detached |
|
Cooling Type
|
Central Air Conditioning |
|
Exterior Finish
|
Brick |
|
Fire Protection
|
Smoke Detectors |
|
Fireplace Present
|
Yes |
|
Foundation Type
|
Block |
|
Half Bath Total
|
2 |
|
Heating Fuel
|
Natural Gas |
|
Heating Type
|
Forced Air |
|
Stories Total
|
2 |
|
Size Interior
|
2,500 - 3,000 Ft2 |
|
Type
|
House |
|
Utility Water
|
Municipal Water |
Parking
Land
|
Acreage
|
No |
|
Land Amenities
|
Park, Place Of Worship, Public Transit, Schools |
|
Landscape Features
|
Landscaped |
|
Sewer
|
Sanitary Sewer |
|
Size Depth
|
200 Ft ,10 In |
|
Size Frontage
|
79 Ft ,7 In |
|
Size Irregular
|
79.6 X 200.9 Ft ; 179.24 X 150.67 X 201.06 X 79.91 Ft |
|
Size Total Text
|
79.6 X 200.9 Ft ; 179.24 X 150.67 X 201.06 X 79.91 Ft |
|
Zoning Description
|
R3 |
Rooms
| Level |
Type |
Length |
Width |
Dimensions |
|
Second Level |
Bathroom |
3.38 m |
1.98 m |
3.38 m x 1.98 m |
|
Second Level |
Sitting Room |
3.02 m |
2.92 m |
3.02 m x 2.92 m |
|
Second Level |
Bedroom 2 |
3.53 m |
3.33 m |
3.53 m x 3.33 m |
|
Second Level |
Bedroom 3 |
4.39 m |
3.71 m |
4.39 m x 3.71 m |
|
Second Level |
Bedroom 4 |
4.39 m |
3.71 m |
4.39 m x 3.71 m |
|
Second Level |
Bathroom |
2.92 m |
1.93 m |
2.92 m x 1.93 m |
|
Second Level |
Primary Bedroom |
5.44 m |
4.04 m |
5.44 m x 4.04 m |
|
Basement |
Family Room |
6.6 m |
4.29 m |
6.6 m x 4.29 m |
|
Basement |
Recreational, Games Room |
5.66 m |
4.44 m |
5.66 m x 4.44 m |
|
Basement |
Bathroom |
2.16 m |
1.5 m |
2.16 m x 1.5 m |
|
Basement |
Bedroom |
4.44 m |
4.44 m |
4.44 m x 4.44 m |
|
Basement |
Kitchen |
3.05 m |
1.52 m |
3.05 m x 1.52 m |
|
Basement |
Bathroom |
2.9 m |
2.59 m |
2.9 m x 2.59 m |
|
Basement |
Other |
2.57 m |
1.57 m |
2.57 m x 1.57 m |
|
Basement |
Utility Room |
5.82 m |
3.58 m |
5.82 m x 3.58 m |
|
Main Level |
Foyer |
5.21 m |
3.66 m |
5.21 m x 3.66 m |
|
Main Level |
Living Room |
6.71 m |
4.6 m |
6.71 m x 4.6 m |
|
Main Level |
Dining Room |
4.57 m |
3.66 m |
4.57 m x 3.66 m |
|
Main Level |
Kitchen |
4.52 m |
2.67 m |
4.52 m x 2.67 m |
|
Main Level |
Eating Area |
4.52 m |
3.43 m |
4.52 m x 3.43 m |
|
Main Level |
Family Room |
4.57 m |
3.05 m |
4.57 m x 3.05 m |
|
Main Level |
Sunroom |
5.13 m |
4.83 m |
5.13 m x 4.83 m |
|
Main Level |
Laundry Room |
2.84 m |
1.98 m |
2.84 m x 1.98 m |
|
Main Level |
Bathroom |
2.01 m |
1.24 m |
2.01 m x 1.24 m |
Utilities
|
Cable
|
Installed |
|
Electricity
|
Installed |
|
Sewer
|
Installed |
https://www.realtor.ca/real-estate/29662700/88-bertram-drive-hamilton-dundas-dundas